Villa Emo

Cap. 3 - L'Architettura

Aa

Text Size

L'Architettura

Villa Emo è uno degli edifici descritti da Andrea Palladio nel trattato “I quattro libri dell’architettura” (1570), nel quale sono riportate alcune regole per costruire edifici e strutture architettoniche. Villa Emo rappresenta il miglior esempio della perfetta fusione tra bellezza e proporzioni armoniche degli elementi architettonici.

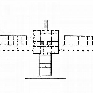
Il complesso della Villa è composto dalla casa padronale, due barchesse laterali e due colombare arretrate rispetto al corpo centrale. Al centro della Villa si incontrano due direttrici: una è formata dalle barchesse, l’altra va dalla rampa fino ai lunghi viali alberati. La Villa è perfettamente simmetrica e proporzionata. In villa Emo le differenti dimensioni degli spazi e i diversi elementi si alternano e si integrano in modo armonioso ma, al tempo stesso, si distinguono. Alla loggia molto grande per esempio segue un atrio molto piccolo e alto la metà.

Superato l’atrio, si entra nella sala principale alta come la loggia mentre a destra e a sinistra della sala si distribuiscono le stanze laterali, ogni lato composto da una stanza a nord, un camerino delle grottesche e una stanza a sud. Le stanze laterali a nord sono alte quanto la sala principale, le stanze a sud invece sono più basse. Tutte le stanze sono intercomunicanti attraverso i camerini delle grottesche.

Gli ambienti della casa padronale si presentano in perfetta armonia con gli ambienti interni disposti su di un unico piano e le barchesse a undici archi aperte verso il giardino. Per la costruzione della Villa, l’architetto Andrea Palladio riprese molte strutture delle abitazioni contadine. Progettò che l’ingresso alla Villa dovesse avvenire da una rampa e non da una scalinata come nella maggior parte delle altre residenze nobili.

La rampa era infatti una scelta architettonica molto usata nella abitazioni rurali perché facilitava il trasporto delle merci e delle botti dalle barchesse alla casa del signore. Grazie alla rampa, quindi, la famiglia nobile poteva facilmente comunicare e rivolgersi agli strati sociali meno abbienti e all’immensa campagna che sta attorno.