L'Architettura
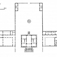
Villa Cordellina Lombardi è una delle ville più conosciute del Vicentino. Il complesso ha il suo centro nella casa padronale, attorno alla quale si distribuiscono le scuderie a sinistra, la foresteria a destra, due torrette dietro la casa padronale, un giardino anteriore e uno posteriore detto “corte nobile”.
Di fronte alla proprietà, fuori dal cancello principale, vi è una piccola cappella, mentre intorno alla Villa si aprono distese di campi coltivati.
La Villa fu costruita dall'architetto Giorgio Massari, che riprese lo stile e le strutture tipiche di Andrea Palladio. Alle geometrie palladiane, il Massari introdusse un'interpretazione personale alle forme e alla collocazione degli edifici; staccò le scuderie e la foresteria dalla casa padronale e le dispose a fianco e dietro la Villa.
Dietro la Villa, le barchesse sono chiuse da un muro e terminano con due torrette utilizzate come portineria. Il muro di cinta separa l'ambiente elegante e ricercato della Villa dalla campagna, sebbene sia proprio il legame tra Villa e campagna ad assicurare magnificenza al complesso.
La casa padronale ha tre piani: il seminterrato, realizzato in pietra bugnata liscia, il piano nobile rialzato e il secondo piano.
Il prospetto principale della Villa presenta, al centro, un prònao con colonne ioniche giganti incorporate nel profilo dell'edificio. Si accede a questa loggia da un'ampia scalinata con statue raffiguranti le “fatiche di Ercole”. Nel frontone è incastonato lo stemma della famiglia Cordellina e sopra vi sono statue di Giove, Mercurio e Minerva.
La facciata principale è scandita da finestre allineate in orizzontale e in verticale. Le finestre del piano nobile hanno un piccolo frontone curvilineo, mentre al secondo piano il frontone è dritto con una gemma scolpita al centro. L'aspetto della facciata posteriore richiama quello della facciata principale.
Le linee sono però più rigide, le colonne sono addossate alla parete e si accede al salone d'onore attraverso una piccola scala.
All'interno della Villa, le stanze si distribuiscono ai lati del salone d'onore. Ai quattro angoli del salone vi sono quattro porte che conducono ad altrettante stanze. Tra due stanze dello stesso lato vi è una terza camera più piccola e le scale per salire al secondo piano. Ogni stanza comunica con quella adiacente in un percorso circolare che ha inizio e fine nel salone. Lo spazio è stato attentamente studiato per favorire un'acustica perfetta in qualsiasi stanza.
Il secondo piano è diviso in due appartamenti, separati dal salone che occupa in altezza due piani. Le finestre del seminterrato si aprono sul basamento dell'edificio principale. Il seminterrato è composto di un vano centrale attorno al quale si sviluppano otto stanze comunicanti, con soffitto a volta e pavimento in cotto originale.
A completare il complesso si trovano le splendide scuderie e la foresteria finemente decorata. Infine, si possono ammirare i giardini, capolavori di geometria, con viali rettilinei, sculture e prati all'inglese. Di fronte alla Villa, sorge la cappella di Sant'Antonio, eretta da Eleonora Pizzocaro nel 1717 su disegno del padre.
 
         
     
                                 
                                 
                                 
                                 
                                 
                                 
                                 
                                 
                                 
                                 
                                 
                                 
                                 
                                 
                                 
                                 
                                 
                                 
                                 
                                 
                                 
                                 
                                 
                                 
                                 
                                 
                                 
                                 
                                 
                                 
                                 
                                 
                                 
                                 
                                 
                                 
                                 
                                 
                                 
                                 
                                 
                                 
                                 
                                 
                                 
                                 
                                 
                                 
                                 
                                 
                                 
                                 
                                 
                                 
                                 
                                 
                                 
                                 
                                 
                                 
                                 
                                 
                                 
                                 
                                 
                                 
                                 
                                 
                                 
                                 
                                 
                                 
                                 
                                 
                                 
                                 
                                 
                                 
                                 
                                 
                                 
                                 
                                 
                                 
                                 
                                 
                                 
                                 
                                 
                                 
                                 
                                 
                                 
                                 
                                 
                                                 
                                                 
                                                 
                                                 
                                                 
                                                 
                                                 
                                             
                                             
                                             
                                             
                                             
                                             
                                             
                                             
                                             
                                             
                                             
                                             
                                             
                                             
                                             
                                             
                                             
                                             
                                             
                                             
                                             
                                             
                                             
                                     
                                     
                                         
                                         
                                             
                                             
                                             
                                             
                                             
                                             
                                             
                                             
                                             
                                             
                                             
                                             
                                             
                                             
                                             
                                             
                                             
                                             
                                             
                                             
                                             
                                             
                                             
                                         
                                         
                                         
                                         
                                         
                                         
                                         
                                         
                                         
                                         
                                         
                                         
                                         
                                         
                                         
                                         
                                         
                                         
                                         
                                         
                                         
                                         
                                         
                                         
                                         
                                         
                                         
                                         
                                         
                                         
                                         
                                         
                                         
                                         
                                         
                                         
                                         
                                         
                                         
                                         
                                         
                                         
                                         
                                         
                                         
                                         
                                         
                                         
                                         
                                         
                                         
                                         
                                         
                                         
                                         
                                         
                                         
                                         
                                         
                                         
                                         
                                         
                                         
                                         
                                         
                                         
                                         
                                         
                                         
                                         
                                         
                                         
                                         
                                         
                                         
                                         
                                         
                                         
                                         
                                         
                                         
                                         
                                         
                                         
                                         
                                         
                                         
                                         
                                         
                                         
                                         
                                         
                                         
                                        